Oak SpringPlan SL-295

SL-295

Plan Details

BASICS

  • 3
  • 2 full, 1 half
  • 2
  • 2
  • Slab
  • Main Floor
  • Main Floor
  • 1

SQUARE FOOTAGE

  • 1,401
  • 941
  • 2,342
  • 484

DIMENSIONS

  • 77'0" x 59'0"
  • 24'0"

PLATE HEIGHTS

  • 0.0'
  • 0.0'

CONSTRUCTION

  • 2x4
  • Gable

STYLE / INFLUENCES

  • Country
  • ,
  • Southern
  • ,
  • Greek Revival

KITCHEN FEATURES

  • Snack
  • ,
  • Island

PRIMARY BEDROOM FEATURES

  • Walk-in Closet
  • ,
  • Porch
  • ,
  • Dual Sinks
  • ,
  • Shower
  • ,
  • Tub

ADDITIONAL FEATURES

  • Porch
  • ,
  • Fireplace
  • ,
  • 2 Stairs to Upper

DESCRIPTION

Oak Spring represents an updated version of Lowcountry residential design, perfect for busy family living and entertaining. Allison Ramsey Architects, Inc., of Beaufort, South Carolina, designed a home suited for those who love the outdoors.

As you enter from the front porch, a foyer leads to the comfortable family room and separates the house into two main sections-with the master suite on one side and the kitchen and living room on the other. A covered wraparound porch welcomes a variety of activities as it opens off all three areas.

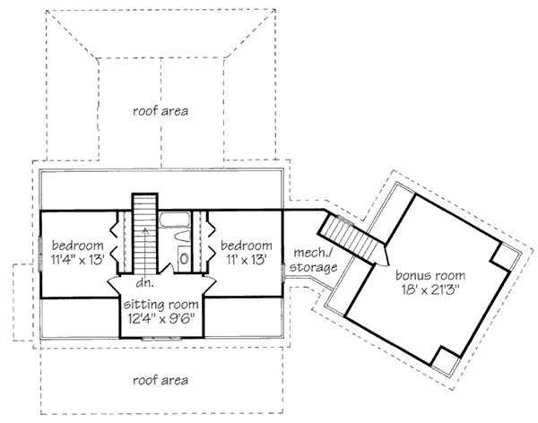
Additional bedrooms and a shared bath are located upstairs. A sitting area connects the two rooms. The upstairs is suited for guests or children. The bonus room above the garage would make a terrific rec room or home office.

Photo credit – Jon Herron, Habersham Properties
TALK to a SPECIALIST!
PLAN PRICING:
Downloadable PDF of full-size drawings.
Best for construction and customization.
Five full sets of construction drawings, copyright protected.
(Floor plans are reversed from plan as shown. All text and dimensions read backwards.)
Recommended for construction bids or pricing. Stamped "Not For Construction".
Purchase price can be applied toward an upgrade to the Construction or PDF Plan set for the same plan.
HOW TO PERSONALIZE YOUR PLAN:
  • 1
    SELECT your favorite plan.
  • 2
    SUBMIT your
    list of
    requirements.
  • 3
    CREATE a list of changes.
Get Started!