Pleasant Hill CottagePlan SL-500

SL-500

Plan Details

BASICS

  • 3
  • 2 full, 1 half
  • 2
  • 0
  • Walkout Basement
  • Main Floor
  • Main Floor
  • 2

SQUARE FOOTAGE

  • 1,814
  • 607
  • 0
  • 2,421

DIMENSIONS

  • 62'0" x 54'0"
  • 30'0"

PLATE HEIGHTS

  • 9.0'
  • 9.0'

CONSTRUCTION

  • 2x4
  • Gable

STYLE / INFLUENCES

  • Recreation/Vacation
  • ,
  • Country
  • ,
  • Craftsman

KITCHEN FEATURES

  • Snack
  • ,
  • Nook
  • ,
  • Island
  • ,
  • Pantry

PRIMARY BEDROOM FEATURES

  • Walk-in Closet
  • ,
  • Dual Sinks
  • ,
  • Shower
  • ,
  • Tub
  • ,
  • Private Toilet
  • ,
  • Deck

ADDITIONAL FEATURES

  • Porch
  • ,
  • Fireplace
  • ,
  • Patio/Terrace

DESCRIPTION

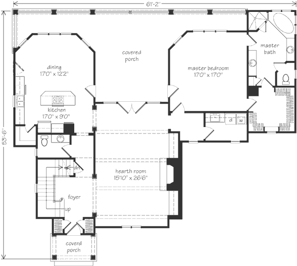
Pleasant Hill Cottage calls to mind simpler days. Its quaint exterior reflects the traditions of the past, but it's suited to a contemporary setting. With just less than 2,500 square feet, this house is perfect for a second home or small family.

Inside, the open floor plan allows for interaction. The family room, kitchen, and breakfast room seem to be one large space, because of their almost unobstructed flow. A covered porch off the back of the house is an inviting place to enjoy outside activities and entertaining.

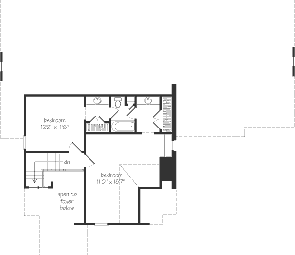
The house has three bedrooms. On the main level, the master bedroom becomes a haven from daily activities. With several windows and access to the back porch, the room is filled with light.
TALK to a SPECIALIST!
PLAN PRICING:
Downloadable PDF of full-size drawings.
Best for construction and customization.
Five full sets of construction drawings, copyright protected.
(Floor plans are reversed from plan as shown. All text and dimensions read backwards.)
Recommended for construction bids or pricing. Stamped "Not For Construction".
Purchase price can be applied toward an upgrade to the Construction or PDF Plan set for the same plan.
HOW TO PERSONALIZE YOUR PLAN:
  • 1
    SELECT your favorite plan.
  • 2
    SUBMIT your
    list of
    requirements.
  • 3
    CREATE a list of changes.
Get Started!