Miss Maggie's HousePlan SL-1171

SL-1171

Plan Details

BASICS

  • 3
  • 2 full, 1 half
  • 2
  • 2
  • Walkout Basement, Crawlspace
  • Main Floor
  • Main Floor
  • 1

SQUARE FOOTAGE

  • 1,444
  • 645
  • 2,089
  • 504

DIMENSIONS

  • 70'0" x 52'0"
  • 27'0"

PLATE HEIGHTS

  • 10.0'
  • 8.0'

CONSTRUCTION

  • 2x4
  • Hip

STYLE / INFLUENCES

  • Country
  • ,
  • Southern
  • ,
  • Tidewater/Low Country

KITCHEN FEATURES

  • Open Layout
  • ,
  • Snack
  • ,
  • Nook

PRIMARY BEDROOM FEATURES

  • Double Doors
  • ,
  • Walk-in Closet
  • ,
  • Dual Sinks
  • ,
  • Shower
  • ,
  • Spa/Whirlpool

ADDITIONAL FEATURES

  • Porch
  • ,
  • Fireplace

DESCRIPTION

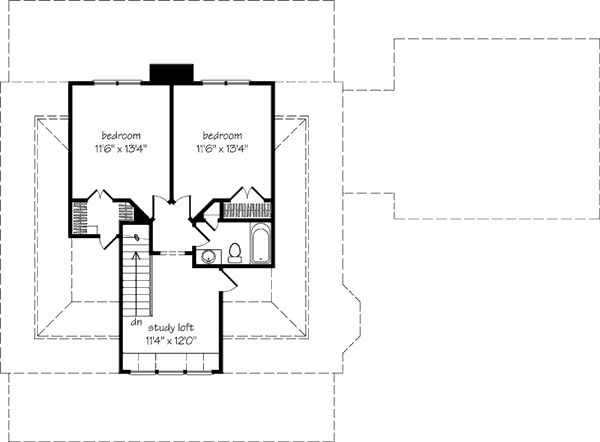
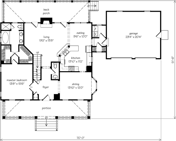
Since she’s left the farm, this must definitely be Miss Maggie’s House. With a main-level primary bedroom, a covered back porch, and an attached garage, this home is made for year-round living. Enjoy two bedrooms upstairs and the option of a walkout basement.
TALK to a SPECIALIST!
PLAN PRICING:
Downloadable PDF of full-size drawings.
Best for construction and customization.
Five full sets of construction drawings, copyright protected.
(Floor plans are reversed from plan as shown. All text and dimensions read backwards.)
Recommended for construction bids or pricing. Stamped "Not For Construction".
Purchase price can be applied toward an upgrade to the Construction or PDF Plan set for the same plan.
HOW TO PERSONALIZE YOUR PLAN:
  • 1
    SELECT your favorite plan.
  • 2
    SUBMIT your
    list of
    requirements.
  • 3
    CREATE a list of changes.
Get Started!