Smythe Park HousePlan SL-1259

SL-1259

Plan Details

BASICS

  • 4
  • 5 full, 1 half
  • 3
  • 3
  • Crawlspace
  • Upper Floor
  • Upper Floor
  • 2

SQUARE FOOTAGE

  • 1,884
  • 1,627
  • 144
  • 3,655
  • 900

DIMENSIONS

  • 60'0" x 105'0"
  • 38'0"

PLATE HEIGHTS

  • 10.0'
  • 9.0'

CONSTRUCTION

  • 2x6
  • Hip

STYLE / INFLUENCES

  • Country
  • ,
  • Southern

KITCHEN FEATURES

  • Open Layout
  • ,
  • Snack
  • ,
  • Nook
  • ,
  • Island
  • ,
  • Pantry

PRIMARY BEDROOM FEATURES

  • Double Doors
  • ,
  • Dual Sinks
  • ,
  • Shower
  • ,
  • Tub
  • ,
  • Outdoor Access
  • ,
  • Private Toilet

ADDITIONAL FEATURES

  • Porch
  • ,
  • Fireplace
  • ,
  • Courtyard
  • ,
  • Summer Kitchen

DESCRIPTION

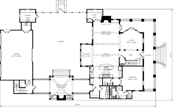
Smythe Park House is the epitome of graceful, Southern architecture. Designed by L. Mitchell Ginn and Associates, Inc., of Newnan, Georgia, the plan features 3,655 square feet, 4 bedrooms and 4.5 baths. A detached guest quarters or home office can be built in 763 square feet of optional space above the 3-car garage.

The house is perfect for people who enjoy outdoor living, with wrap-around porches on the first and second levels, a courtyard garden and a summer kitchen. An open floor plan gives the first floor a spacious, airy feel and makes entertaining a breeze. The foyer leads into the formal dining room and the breakfast room, which flows uninterrupted into the kitchen, sunroom and family room. Banks of windows at the rear of the house allow for abundant sunlight. Upstairs, a study space on the landing overlooks the staircase. The second-floor master suite has a private entry to the front porch. Enjoy an expansive, 360-degree view from the third-floor observation tower.
TALK to a SPECIALIST!
PLAN PRICING:
Downloadable PDF of full-size drawings.
Best for construction and customization.
Five full sets of construction drawings, copyright protected.
(Floor plans are reversed from plan as shown. All text and dimensions read backwards.)
Recommended for construction bids or pricing. Stamped "Not For Construction".
Purchase price can be applied toward an upgrade to the Construction or PDF Plan set for the same plan.
Downloadable letter-size PDF with floor plans, exterior elevations, and color photography (if available).
HOW TO PERSONALIZE YOUR PLAN:
  • 1
    SELECT your favorite plan.
  • 2
    SUBMIT your
    list of
    requirements.
  • 3
    CREATE a list of changes.
Get Started!