Charles Towne PlacePlan SL-1290

SL-1290

Plan Details

BASICS

  • 5
  • 5 full, 1 half
  • 3
  • 3
  • Walkout Basement
  • Main Floor
  • Main Floor
  • 2

SQUARE FOOTAGE

  • 2,463
  • 1,564
  • 144
  • 1,330
  • 5,501
  • 860

DIMENSIONS

  • 60'0" x 67'0"
  • 0'0"

PLATE HEIGHTS

  • 10.0'
  • 9.0'

CONSTRUCTION

  • 2x4
  • Hip

STYLE / INFLUENCES

  • Country
  • ,
  • Southern
  • ,
  • Tidewater/Low Country

KITCHEN FEATURES

  • Open Layout
  • ,
  • Snack
  • ,
  • Island
  • ,
  • Pantry
  • ,
  • Butler's Pantry

PRIMARY BEDROOM FEATURES

  • Double Doors
  • ,
  • Walk-in Closet
  • ,
  • Dual Sinks
  • ,
  • Shower
  • ,
  • Outdoor Access
  • ,
  • Private Toilet
  • ,
  • Spa/Whirlpool

ADDITIONAL FEATURES

  • Porch
  • ,
  • Fireplace
  • ,
  • Patio/Terrace

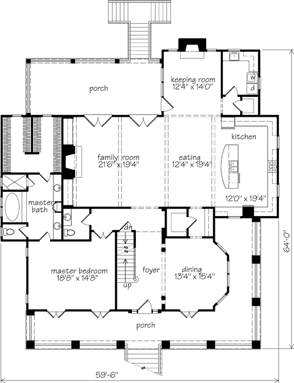
DESCRIPTION

Charles Towne Place combines authentic styling with spacious interiors. Its raised foundation certainly reflects the coastal styling along with providing a lower level of 1,330 square feet of living space.

On the main floor, interiors are open and spacious for family living. Ceiling heights are 9-feet-high on the ground floor, 10-feet-high on the first floor, and 9-feet-high upstairs. A circular stair provides access to the lookout tower, the perfect place for enjoying views, reading, and relaxation.
TALK to a SPECIALIST!
PLAN PRICING:
Downloadable PDF of full-size drawings.
Best for construction and customization.
Five full sets of construction drawings, copyright protected.
(Floor plans are reversed from plan as shown. All text and dimensions read backwards.)
Recommended for construction bids or pricing. Stamped "Not For Construction".
Purchase price can be applied toward an upgrade to the Construction or PDF Plan set for the same plan.
HOW TO PERSONALIZE YOUR PLAN:
  • 1
    SELECT your favorite plan.
  • 2
    SUBMIT your
    list of
    requirements.
  • 3
    CREATE a list of changes.
Get Started!