AaronwoodPlan SL-1293
SL-1293
Plan Details
BASICS
- 3
- 3 full, 1 half
- 2
- 3
- Walkout Basement
- Main Floor
- Main Floor
- 2
SQUARE FOOTAGE
- 2,732
- 880
- 3,612
- 959
DIMENSIONS
- 83'0" x 115'0"
- 34'0"
PLATE HEIGHTS
- 9.0'
- 9.0'
CONSTRUCTION
- 2x4
- Gable
STYLE / INFLUENCES
- Country ,
- Southern ,
- Farmhouse
KITCHEN FEATURES
- Nook ,
- Island ,
- Pantry
PRIMARY BEDROOM FEATURES
- Walk-in Closet ,
- Dual Sinks ,
- Shower ,
- Tub ,
- Fireplace ,
- Outdoor Access ,
- Private Toilet
ADDITIONAL FEATURES
- Porch ,
- Fireplace ,
- Deck
DESCRIPTION
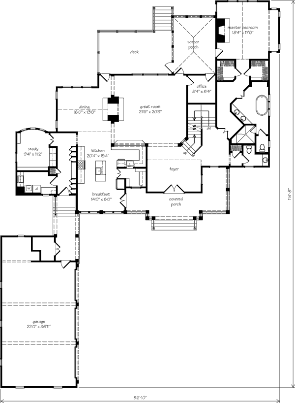
Farmhouse-inspired Aaronwood is equally at home in the suburbs or in the country. Designed by Timothy Bryan, the 3,452-square-foot plan has plenty of room for everyone with three or four bedrooms and three and a half baths.
Gracious French doors invite guests to come in, relax and enjoy good company. Entertainers will love the home's free-flowing floor plan. The foyer opens to an aptly named great room that features soaring, two-story ceilings. On quiet weeknights and holidays, families can gather around the hearth - the focal point of the great room is a double-sided fireplace that passes through to the formal dining room. The airy kitchen includes both a sit-down snack bar and a breakfast nook. A side entrance near the garage leads to storage lockers that contain keys, coats and sports equipment in one convenient location. Down the hall, a bay window fills the study with sunlight.
On the opposite side of the first level, the master suite is a secluded, private retreat. Another large fireplace accents the master bedroom, which has access to a screened porch with a vaulted ceiling. Two large walk-in closets and a soaking tub that looks out a bank of windows make it a truly luxurious space.
Gracious French doors invite guests to come in, relax and enjoy good company. Entertainers will love the home's free-flowing floor plan. The foyer opens to an aptly named great room that features soaring, two-story ceilings. On quiet weeknights and holidays, families can gather around the hearth - the focal point of the great room is a double-sided fireplace that passes through to the formal dining room. The airy kitchen includes both a sit-down snack bar and a breakfast nook. A side entrance near the garage leads to storage lockers that contain keys, coats and sports equipment in one convenient location. Down the hall, a bay window fills the study with sunlight.
On the opposite side of the first level, the master suite is a secluded, private retreat. Another large fireplace accents the master bedroom, which has access to a screened porch with a vaulted ceiling. Two large walk-in closets and a soaking tub that looks out a bank of windows make it a truly luxurious space.
TALK to a SPECIALIST!
PLAN PRICING:
HOW TO PERSONALIZE YOUR PLAN:
- 1SELECT your favorite plan.
- 2SUBMIT yourlist ofrequirements.
- 3CREATE a list of changes.




























