LullwaterPlan SL-1428

SL-1428

Plan Details

BASICS

  • 4
  • 4 full, 1 half
  • 2
  • 3
  • Walkout Basement
  • Main Floor
  • Main Floor
  • 2

SQUARE FOOTAGE

  • 2,543
  • 1,251
  • 3,794
  • 808

DIMENSIONS

  • 75'0" x 91'0"
  • 36'0"

PLATE HEIGHTS

  • 10.0'
  • 9.0'

CONSTRUCTION

  • 2x4
  • Gable

STYLE / INFLUENCES

  • Southern
  • ,
  • English Tudor

KITCHEN FEATURES

  • Nook
  • ,
  • Island
  • ,
  • Pantry

PRIMARY BEDROOM FEATURES

  • Walk-in Closet
  • ,
  • Dual Sinks
  • ,
  • Shower
  • ,
  • Tub
  • ,
  • Outdoor Access
  • ,
  • Private Toilet

ADDITIONAL FEATURES

  • Porch
  • ,
  • Fireplace

DESCRIPTION

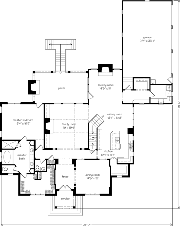
Lullwater, inspired by the 1920s Tudor-style, features the craftsmanship and quality of its English ancestors. Tall and traditional, its twin gables with sweeping eaves, multipaned casement windows, and half-timbered construction give the exterior both character and curb appeal. These wooden accents along with brick and stucco create a gracious, timeless look.

Designed with an open floor plan, the family room features a coffered, 11-foot-high ceiling. The vaulted ceiling in the keeping room adds volume and architectural interest as well. Two fireplaces warm interiors, while an inviting outdoor fireplace may be enjoyed at least three seasons of the year.
TALK to a SPECIALIST!
PLAN PRICING:
Downloadable PDF of full-size drawings.
Best for construction and customization.
Five full sets of construction drawings, copyright protected.
(Floor plans are reversed from plan as shown. All text and dimensions read backwards.)
Recommended for construction bids or pricing. Stamped "Not For Construction".
Purchase price can be applied toward an upgrade to the Construction or PDF Plan set for the same plan.
Downloadable letter-size PDF with floor plans, exterior elevations, and color photography (if available).
HOW TO PERSONALIZE YOUR PLAN:
  • 1
    SELECT your favorite plan.
  • 2
    SUBMIT your
    list of
    requirements.
  • 3
    CREATE a list of changes.
Get Started!