Hemlock SpringsPlan SL-1590

SL-1590

Plan Details

BASICS

  • 3
  • 3 full, 1 half
  • 3
  • 3
  • Walkout Basement
  • Main Floor
  • Main Floor
  • 3

SQUARE FOOTAGE

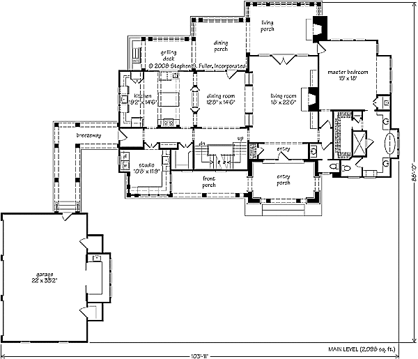
  • 2,089
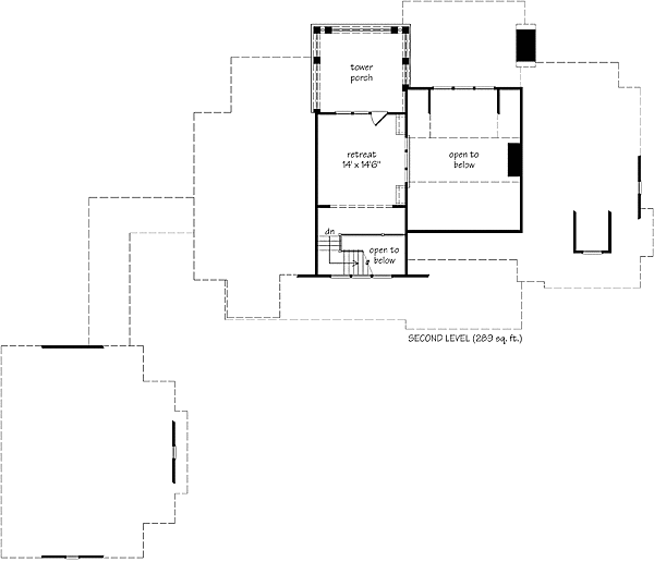
  • 289
  • 1,370
  • 3,748
  • 959

DIMENSIONS

  • 104'0" x 80'0"
  • 0'0"

PLATE HEIGHTS

  • 9.0'
  • 8.0'

CONSTRUCTION

  • 2x4
  • Gable

STYLE / INFLUENCES

  • Craftsman

KITCHEN FEATURES

  • Island
  • ,
  • Open Layout
  • ,
  • Pantry
  • ,
  • Snack

PRIMARY BEDROOM FEATURES

  • Spa/Whirlpool
  • ,
  • Walk-in Closet
  • ,
  • Shower
  • ,
  • Private Toilet
  • ,
  • Dual Sink
  • ,
  • Outdoor Access
  • ,
  • Sitting Area
  • ,
  • Porch

ADDITIONAL FEATURES

  • Workshop/Workbench
  • ,
  • Summer Kitchen
  • ,
  • Patio/Terrace
  • ,
  • Wet Bar
  • ,
  • Porch Fireplace

DESCRIPTION

Hemlock Springs offers both a casual and polished look, as it is the perfect family respite or primary residence. A simple roofline of low intersecting gables provides a silhouette that references the mountain terrain beyond. Classic double windows lighten the visual weight and provide glimpses into the home's light-filled interiors. The host of porches results in compositionally striking front and rear elevations, suggestive of rustic lodges of the early twentieth century.
TALK to a SPECIALIST!
PLAN PRICING:
Downloadable PDF of full-size drawings.
Best for construction and customization.
Five full sets of construction drawings, copyright protected.
(Floor plans are reversed from plan as shown. All text and dimensions read backwards.)
Recommended for construction bids or pricing. Stamped "Not For Construction".
Purchase price can be applied toward an upgrade to the Construction or PDF Plan set for the same plan.
Downloadable letter-size PDF with floor plans, exterior elevations, and color photography (if available).
HOW TO PERSONALIZE YOUR PLAN:
  • 1
    SELECT your favorite plan.
  • 2
    SUBMIT your
    list of
    requirements.
  • 3
    CREATE a list of changes.
Get Started!