Holly RidgePlan SL-1599

SL-1599

Plan Details

BASICS

  • 4
  • 3 full, 1 half
  • 2
  • A2
  • Walkout Basement
  • Main Floor
  • Main Floor
  • 2

SQUARE FOOTAGE

  • 1,944
  • 954
  • 2,898

DIMENSIONS

  • 53'6" x 73'0"
  • 32'0"

PLATE HEIGHTS

  • 9.0'
  • 8.0'

CONSTRUCTION

  • 2x4
  • Gable

STYLE / INFLUENCES

  • Southern

KITCHEN FEATURES

  • Pantry
  • ,
  • Island
  • ,
  • Nook

PRIMARY BEDROOM FEATURES

  • Spa/Whirlpool
  • ,
  • Dual Sinks
  • ,
  • Walk-in Closet
  • ,
  • Shower
  • ,
  • Private Toilet

ADDITIONAL FEATURES

  • Deck
  • ,
  • Porch
  • ,
  • Fireplace

DESCRIPTION

This story and a half home combines warm informal materials with a modern livable floor plan to create a true Southern classic. From one's entrance, the openness of this home is readily apparent.

The Dining Room, Study and Great Room with its huge fireplace and French doors, work together to create an exciting space. Just beyond the open rail, the breakfast room is lined with windows bringing sunlight to the kitchen. Plenty of counter space and storage make the kitchen truly usable. Entered through large double doors, the master suite, with its tray ceiling and decorative wall niche, make this a gracious and private owner's retreat. Its many windows overlooking the backyard add brightness to the start of every day. You will find the master bath is generous and complete.

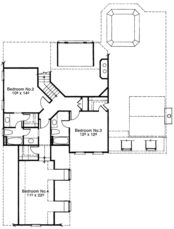
Upstairs two additional bedrooms have their own vanity within a shared bath while the third bedroom or guest room has its own bath and walk in closet.
TALK to a SPECIALIST!
PLAN PRICING:
Downloadable PDF of full-size drawings.
Best for construction and customization.
Five full sets of construction drawings, copyright protected.
(Floor plans are reversed from plan as shown. All text and dimensions read backwards.)
Recommended for construction bids or pricing. Stamped "Not For Construction".
Purchase price can be applied toward an upgrade to the Construction or PDF Plan set for the same plan.
HOW TO PERSONALIZE YOUR PLAN:
  • 1
    SELECT your favorite plan.
  • 2
    SUBMIT your
    list of
    requirements.
  • 3
    CREATE a list of changes.
Get Started!