Chestnut LanePlan SL-1597
SL-1597
Plan Details
BASICS
- 4
- 3 full, 1 half
- 2
- D2
- Walkout Basement
- Main Floor
- Main Floor
- 2
SQUARE FOOTAGE
- 1,960
- 905
- 2,865
DIMENSIONS
- 70'0" x 75'0"
- 33'0"
PLATE HEIGHTS
- 9.0'
- 8.0'
CONSTRUCTION
- 2x4
- Gable
STYLE / INFLUENCES
- Adam ,
- Federal/Georgian
KITCHEN FEATURES
- Pantry ,
- Island ,
- Nook
PRIMARY BEDROOM FEATURES
- Spa/Whirlpool ,
- Walk-in Closet ,
- Shower ,
- Outdoor Access ,
- Private Toilet ,
- Deck ,
- Dual Sinks
ADDITIONAL FEATURES
- Porch ,
- Fireplace ,
- Deck
DESCRIPTION
The classical styling of this colonial home will be appreciated for years. Grand in the use of brick and wood details, its windows are dressed with shutters, and brick jack arches add warmth to its exterior. As you walk inside, the quality of this home's space and openness is immediately evident.
The Foyer opens to both a banquet size Dining Room and formal Living Room, including a fireplace. Just beyond, subtly defined with the use of columns and arched openings is the two story Great Room which is bathed in sunlight by the large windows. The entire right side of the main level becomes the sumptuous Master Suite. A dramatic tray ceiling, and a wall of glass, make this Master Suite one to be remembered. The Master Bath features separate vanities and a large walk-in closet. The other side of the main level includes a large Kitchen that is conveniently situated with cooking island adjoining the Breakfast Room, and just steps away from the detached garage is the laundry area.
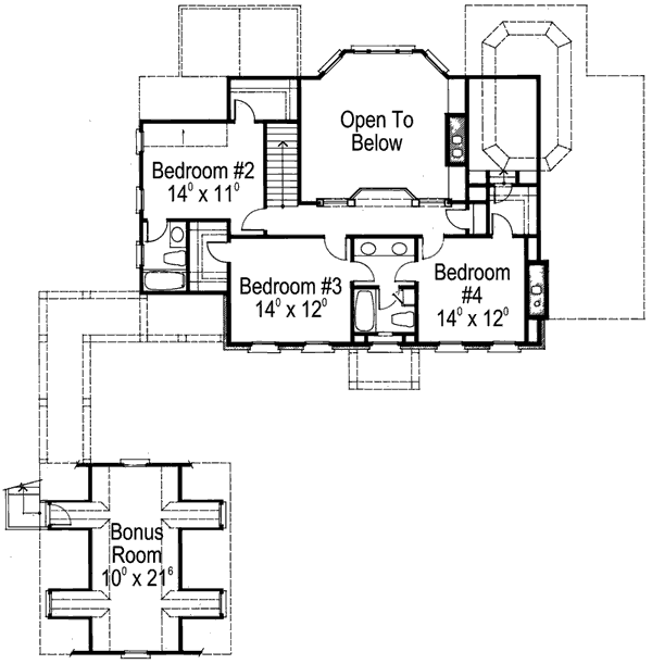
Moving upstairs, from one of the three Bedrooms to another you'll pass the open railing that looks into the great room below. Each bedroom features ample closet space and direct access to bathrooms making this a home for today's lifestyle. The detached garage even features an unfinished office or studio on its second level.
The Foyer opens to both a banquet size Dining Room and formal Living Room, including a fireplace. Just beyond, subtly defined with the use of columns and arched openings is the two story Great Room which is bathed in sunlight by the large windows. The entire right side of the main level becomes the sumptuous Master Suite. A dramatic tray ceiling, and a wall of glass, make this Master Suite one to be remembered. The Master Bath features separate vanities and a large walk-in closet. The other side of the main level includes a large Kitchen that is conveniently situated with cooking island adjoining the Breakfast Room, and just steps away from the detached garage is the laundry area.
Moving upstairs, from one of the three Bedrooms to another you'll pass the open railing that looks into the great room below. Each bedroom features ample closet space and direct access to bathrooms making this a home for today's lifestyle. The detached garage even features an unfinished office or studio on its second level.
TALK to a SPECIALIST!
PLAN PRICING:
HOW TO PERSONALIZE YOUR PLAN:
- 1SELECT your favorite plan.
- 2SUBMIT yourlist ofrequirements.
- 3CREATE a list of changes.









































































